£385,000

3 bed maisonette for sale in Tynemouth Road, Mitcham, CR4 (ref: 80190871)

Shortlist

Key features

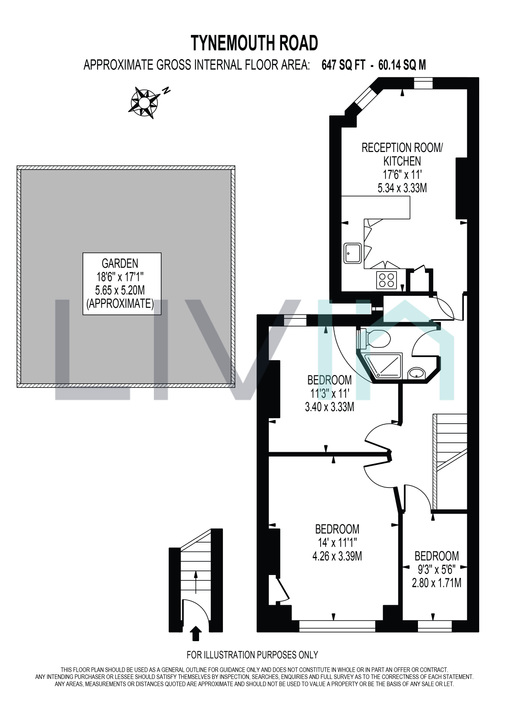
  • Bright Open-Plan Reception Room And Kitchen
  • Three Well-Proportioned Bedrooms
  • Private Rear Garden
  • Great Potential For Improvement
  • Close To Shops, Cafes, And Green Spaces
  • Excellent Transport Links To Central London
  • Sought After Location
  • Chain Free
  • Own Front Door
This well-proportioned first-floor apartment offers a fantastic opportunity for buyers seeking space, convenience, and excellent transport links in a vibrant South London location Close to Tooting Station, further benefitting from a private rear garden.

Set within a period property, the home features a generous open-plan reception room and kitchen — the perfect hub for both relaxing and entertaining. Large windows flood the space with natural light, creating a bright and airy atmosphere throughout.

The property benefits from three good-sized bedrooms, offering flexible living arrangements ideal for families, sharers, or those looking for a home office. The bathroom includes a shower and neutral finishes, ready for personal touches.

Located on Tynemouth Road, the apartment enjoys close proximity to local amenities, shops, cafes, and parks. Excellent transport links, including nearby Underground and Overground stations, provide easy access to Central London and beyond.

This property represents a superb opportunity for buyers looking to add value or create a home tailored to their style.

What this property offers

  • Garden
  • No Onward Chain
  • Open Plan

Stamp duty due

Based on a sale price of £385,000 the total amount of stamp duty payable will be:

*

Last updated: The calculator has been updated to reflect changes in stamp duty following the Autumn Budget on 30th October 2024. The rates will change again April 1st 2025.

* This value is based on the standard rate and not applicable to first-time buyers or buy-to-let / second home buyers.

12 Property images

3 bed maisonette for sale in Tynemouth Road, Mitcham 0
3 bed maisonette for sale in Tynemouth Road, Mitcham 1
3 bed maisonette for sale in Tynemouth Road, Mitcham 2
3 bed maisonette for sale in Tynemouth Road, Mitcham 3
3 bed maisonette for sale in Tynemouth Road, Mitcham 4
3 bed maisonette for sale in Tynemouth Road, Mitcham 5
3 bed maisonette for sale in Tynemouth Road, Mitcham 6
3 bed maisonette for sale in Tynemouth Road, Mitcham 7
3 bed maisonette for sale in Tynemouth Road, Mitcham 8
3 bed maisonette for sale in Tynemouth Road, Mitcham 9
3 bed maisonette for sale in Tynemouth Road, Mitcham 10
3 bed maisonette for sale in Tynemouth Road, Mitcham 11

Further details

  • New listing: launched in the last 10 days
  • Status: Available
  • Tenure: Leasehold
  • Tags: Garden, No Onward Chain, Open Plan
  • Reference: 681263

Location

Similar priced properties

2 bed apartment for sale in Worcester Close, London, SE20
2 bed apartment for sale in Worcester Close, London, SE20 Guide Price £375,000
2 2 1

Set within a well-regarded modern development on tranquil Versailles Road, this generously proportioned two-bedroom, two-bathroom ground floor apartment combines contemporary style with practical comfort. A private patio and secure off-street parking...

2 bed maisonette for sale in The Gardens, London, SE25
Sold STC
2 bed maisonette for sale in The Gardens, London, SE25 £375,000
2 1 1

Nestled on a peaceful residential street in the heart of South Norwood, this beautifully presented chain-free, ground-floor flat offers the perfect blend of character, comfort, and outdoor living. From the moment you step inside, you’ll be greeted...

2 bed maisonette for sale in Havelock Road, Croydon, CR0
2 bed maisonette for sale in Havelock Road, Croydon, CR0 Asking Price £385,000
2 2 2

Nestled in the heart of Addiscombe, on the sought-after Havelock Road, this delightful two-bedroom home offers a perfect blend of comfort, space and versatility. Ideal for families, professionals or investors, the property boasts a well-balanced...